
The Hilton House comprises of three (3) bedrooms, two and a half (2.5) bathrooms, Kitchen, Dining and Living room spaces along with an office and open porches, great for entertaining guest or relaxing with the family. This concept has approximately 3,485 square footage of living space.








This house has approximately 2,230 square footage of living space. There are two (2) full bedrooms, three and a half (3.5) bathrooms, a study that can be converted into guest quarters, open concept Kitchen, Dining and Living room spaces along with a laundry area and open porches, .








This house is a one-story home with approximately 2,590 square footage of living space. This concept comprises of three (3) bedrooms; two and a half (2.5) bathrooms, an office space, open concept Kitchen, Dining and Great Room spaces along with a laundry area as well as front and back porch spaces.






This house is a two-story home with approximately 2,540 square footage of living space. This concept comprises of three (3) bedrooms; two and a half (2.5) bathrooms, open concept Kitchen, Dining and Living Room spaces, a garage, laundry area as well as lots of porch space.






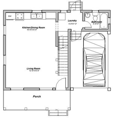
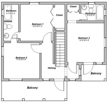
This house is a two-story home with approximately 1778 Square Footage of living space. This concept comprises of three (3) bedrooms; three bathrooms, with open concept kitchen, Dining and living room spaces, and a garage with porch space



Prices are quoted in Eastern Caribbean Currency (E.C)
* Please note that due to significant increases in the cost of construction material worldwide, we have had to adjust our price list to accommodate this.
*Price List is for House and Land packages.
Email us for more information on costing
Affluent Homes Limited (Nevis)
Upper Prince William Street, Charlestown, Nevis
Copyright © 2022 Affluent Homes Limited (Nevis) - All Rights Reserved.
Powered by GoDaddy
You can obtain 100% financing from
The Bank of Nevis Limited
with a starting interest rate of 5.5% per annum and up to 30 years to repay.